CASA FRANCESCA
Casa Francesca is Mainefactured’s signature design — a modern tiny home created to offer memorable living experiences without sacrificing craftsmanship, character, or architectural beauty
Casa Francesca is Mainefactured’s signature design — a modern tiny home created to offer memorable living experiences without sacrificing craftsmanship, character, or architectural beauty

Designed and built by Mainefactured, Casa Francesca combines distinctive architecture with thoughtful construction to create a home that feels both refined and deeply connected to its surroundings.
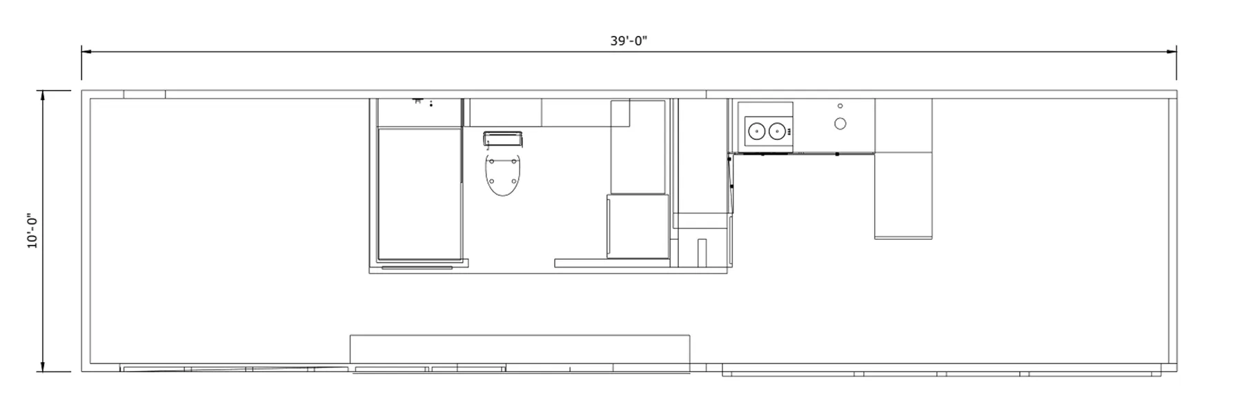
The design features a striking A-frame living space paired with a modern rectangular volume, creating a balanced architectural composition filled with natural light and carefully crafted details. Expansive glass openings invite the outdoors in while warm materials and thoughtful textures bring comfort and depth to the interior.
Each Casa Francesca is built in limited numbers each year to preserve the level of care, craftsmanship, and attention to detail that define Mainefactured homes.

Designed and built by Mainefactured, Casa Francesca combines distinctive architecture with thoughtful construction to create a home that feels both refined and deeply connected to its surroundings.

The design features a striking A-frame living space paired with a modern rectangular volume... Expansive glass openings invite the outdoors in while warm materials and thoughtful textures bring comfort and depth to the interior.




The Casa Francesca Collection
Every Casa Francesca shares the same architectural DNA while offering different levels of features and customization.
Casa Francesca Standard

The Casa Francesca Standard introduces the signature architecture that defines Mainefactured: thoughtful proportions, modern simplicity, and a deep connection between indoor and outdoor living.
The home features the iconic A-frame living space that fills the interior with natural light while maintaining a warm and intimate scale. Clean architectural lines and carefully selected materials create a calm, welcoming environment designed for everyday comfort.
The Standard model offers the full Casa Francesca design while maintaining a streamlined construction approach, making it an ideal option for homeowners and investors seeking timeless architecture with exceptional craftsmanship.
Casa Francesca Signature

Most Popular
The Casa Francesca Signature elevates the experience with the addition of a rooftop terrace designed for gathering, quiet reflection, and panoramic views.
The rooftop deck creates a second destination above the home — a private retreat that transforms the way the home is experienced and enjoyed. Whether used for morning coffee, sunset conversations, or stargazing, the terrace expands the living space beyond the walls of the home.
Inside, the signature A-frame living space continues to define the character of the home, while carefully selected finishes and thoughtful detailing reflect Mainefactured’s commitment to craftsmanship and design integrity.
The Signature model represents the complete architectural experience of Casa Francesca.
Spiral staircase sold separately.
Casa Francesca Founder’s Edition

Limited Edition
The Founder’s Edition represents the most complete expression of Casa Francesca — a limited series created to celebrate the origin of Mainefactured’s flagship design.
Inspired by the award-winning home that received Grand Champion design and build recognition at Environmental Xperience at EarthX, this edition features a curated selection of upgraded materials and architectural details that elevate the living experience beyond the standard models.
Each Founder’s Edition home includes handcrafted walnut cabinetry, premium fixtures, and a custom steel spiral staircase designed specifically for the rooftop terrace. Every material and detail is personally selected by Anabella Mainetti to bring warmth, texture, and character into each space through thoughtful design.
To commemorate its place in the founding series, every Founder’s Edition home includes a numbered brass plaque identifying its unique place within the Casa Francesca collection.
Only a very limited number of Founder’s Edition homes are produced each year, reserved for clients seeking a more bespoke interpretation of the design and a deeper connection to the origins of Mainefactured.
The Founder’s Edition is not simply a home — it is a piece of the story behind Casa Francesca.

Casa Francesca Standard
Starting at
$179,000
The Casa Francesca Standard introduces the signature architecture that defines Mainefactured: thoughtful proportions, modern simplicity, and a deep connection between indoor and outdoor living.
The home features the iconic A-frame living space that fills the interior with natural light while maintaining a warm and intimate scale. Clean architectural lines and carefully selected materials create a calm, welcoming environment designed for everyday comfort.
The Standard model offers the full Casa Francesca design while maintaining a streamlined construction approach, making it an ideal option for homeowners and investors seeking timeless architecture with exceptional craftsmanship.
.avif)
Casa Francesca Signature
Starting at
$199,000
Most Popular
The Casa Francesca Signature elevates the experience with the addition of a rooftop terrace designed for gathering, quiet reflection, and panoramic views.
The rooftop deck creates a second destination above the home — a private retreat that transforms the way the home is experienced and enjoyed. Whether used for morning coffee, sunset conversations, or stargazing, the terrace expands the living space beyond the walls of the home.
Inside, the signature A-frame living space continues to define the character of the home, while carefully selected finishes and thoughtful detailing reflect Mainefactured’s commitment to craftsmanship and design integrity.
The Signature model represents the complete architectural experience of Casa Francesca.
Spiral staircase sold separately.

%20(2).avif)
Casa Francesca Founder’s Edition
Starting at
$239,000
Limited Edition
The Founder’s Edition represents the most complete expression of Casa Francesca — a limited series created to celebrate the origin of Mainefactured’s flagship design.
Inspired by the award-winning home that received Grand Champion design and build recognition at Environmental Xperience at EarthX, this edition features a curated selection of upgraded materials and architectural details that elevate the living experience beyond the standard models.
Each Founder’s Edition home includes handcrafted walnut cabinetry, premium fixtures, and a custom steel spiral staircase designed specifically for the rooftop terrace. Every material and detail is personally selected by Anabella Mainetti to bring warmth, texture, and character into each space through thoughtful design.
To commemorate its place in the founding series, every Founder’s Edition home includes a numbered brass plaque identifying its unique place within the Casa Francesca collection.
Only a very limited number of Founder’s Edition homes are produced each year, reserved for clients seeking a more bespoke interpretation of the design and a deeper connection to the origins of Mainefactured.
The Founder’s Edition is not simply a home — it is a piece of the story behind Casa Francesca.
Built by Mainefactured
Every Casa Francesca is designed and built by Mainefactured, a family-led company dedicated to crafting thoughtful tiny homes that combine modern design with enduring construction.
Rather than mass production, Mainefactured builds a limited number of homes each year, allowing every project to receive the attention and craftsmanship it deserves.
The result is a collection of homes that are not only beautiful to live in, but designed to stand apart in the evolving world of modern tiny home architecture.

Casa Francesca

Casa Francesca
Key Features

Craftsmanship and amenities
Exterior features

Specs at a glance



